
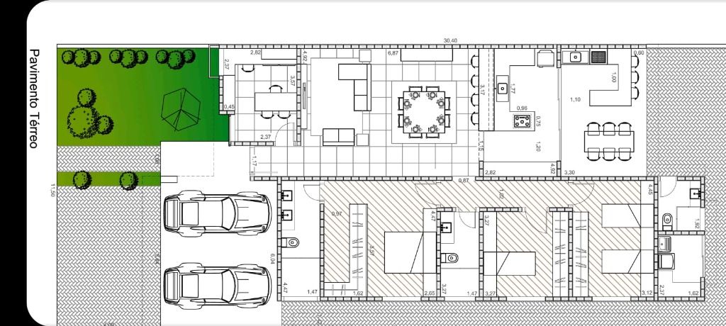
Casa em fase de construção. Reboque e contra piso concluídos. Casa de excelente qualidade. Utilizado materiais de primeira linha e melhores marcas.Ótima oportunidade para quem quer realizar o acabamento de acordo com seu agrado.O imóvel conta com pé direito duplo, 3 quartos, 3 banheiros, escritório, espaço gourmet e um bom espaço de quintal livre.O condomínio fica localizado em uma excelente região de Valinhos. Próximo ao Centro.O condomínio Residencial Colline di Parma em Valinhos conta com total infraestrutura.Loteamento fechado com portaria 24hrs, apenas 87 lotes e área de lazer completa, sendo salão de festa, clube com piscina para adultos e crianças, churrasqueira, playground e ainda uma ampla área verde com lago.Todo cabeamento é subterrâneo, o que deixa o local mais agradável.Vale a pena conhecer!Agende logo a sua visita!Marina Mendonça19 982227577